Giữa vô vàn những câu chuyện về nhà đẹp được chia sẻ mỗi ngày, một căn nhà cấp bốn nhỏ xinh ở Đồng Nai của một cô gái trẻ vẫn dễ dàng chiếm được cảm tình của nhiều người. Không phải kiến trúc sư, cũng chẳng phải nhà thiết kế nội thất, cô chỉ đơn giản là người mê decor, yêu căn nhà của mình và muốn chia sẻ niềm vui đó với mọi người. Có lẽ chính sự chân thật, gần gũi và tinh tế trong cách cô kể chuyện đã khiến người ta cảm thấy như được dạo quanh chính ngôi nhà mơ ước của mình.
Căn nhà được xây trên mảnh đất vừa phải, phía trước là sân vườn nhỏ xanh mát - nơi cô trồng rau và cây ăn trái. Không gian ấy vừa mang nét dân dã quen thuộc, vừa thể hiện tinh thần “bỏ phố về quê” mà nhiều bạn trẻ đang theo đuổi.
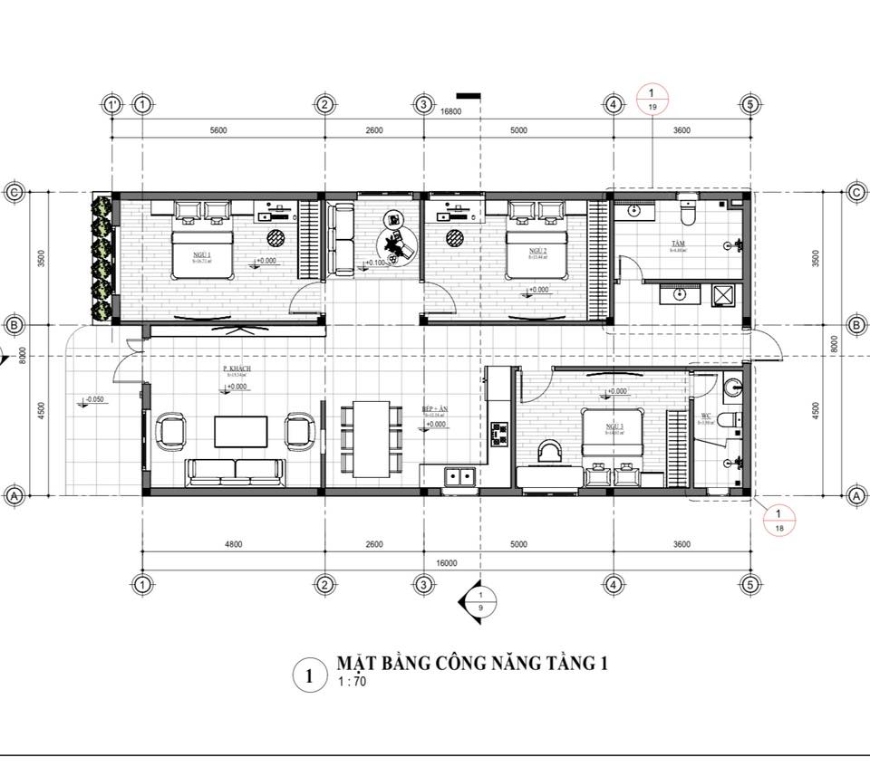
Bước vào nhà, mọi thứ được sắp xếp gọn gàng và tinh tế. Phòng khách, khu bếp và các góc sinh hoạt chung đều được decor nhẹ nhàng, mang gam màu sáng và ấm. Cô chọn nội thất đơn giản, nhưng tinh ý trong cách kết hợp chất liệu và ánh sáng. Một góc bập bênh bên cửa kính, tủ giày nhỏ xinh ngay lối vào, hay khung cửa sổ mở ra vườn… tất cả đều gợi cảm giác bình yên, thân thuộc.
Ba phòng ngủ được bố trí hợp lý, mỗi phòng mang một nét riêng. Căn phòng yêu thích nhất của cô nằm cạnh phòng khách, có cửa sổ nhìn ra sân vườn và thường được dùng làm góc quay video. Chính nơi đây, cô chia sẻ những câu chuyện nhỏ về cuộc sống, về cách sắp xếp không gian sao cho ấm cúng và “có hồn”.
Phía sau nhà là khu giặt, nhà vệ sinh chung và một khoảng sân phơi nhỏ. Dù diện tích không lớn, nhưng từng mét vuông đều được tận dụng thông minh. Cô bảo: “Ngày xưa ít ai xây nhà cấp bốn kiểu này, chứ giờ nhiều lắm - vừa rẻ mà vừa xinh.”
Ngôi nhà ấy không sang trọng hay đắt đỏ, nhưng lại khiến người ta phải mỉm cười. Bởi trong từng góc nhỏ đều có tình yêu, có sự chăm chút và có một tinh thần sống giản dị, tích cực. Có lẽ, đó chính là điều khiến video của cô trở nên đặc biệt - một lời nhắc nhẹ rằng hạnh phúc đôi khi bắt đầu từ chính những điều nhỏ bé quanh ta.




































Ảnh: PhunggDecor
